Ukládání projektu

Tato stránka používá cookies, pro správnou funkci stránky prosím sdělte svůj souhlas.

Loft v obnovené Mlynici

Loft v obnovené Mlynici

Bydlení v takovém prostředí není pro každého. Architekti se rozhodli svůj návrh postavit na dialogu starého a nového. Původní povrchy v interiéru zůstávají odkryté. Syrové, elementární a pravdivé ve své materiálové podstatě jsou i nové prvky.

Železobetonový skelet průmyslového objektu se po náročné konverzi změnil na moderní, administrativní, kulturní a obytný soubor. Projekt ateliéru GutGut reagoval na novou poptávku po flexibilním pracovním prostředí, originálních eventových prostorech a po loftových bytech. V zahraničí osvědčený mix funkcí a snaha o vytvoření komunitního prostředí je u nás relativní novinkou.

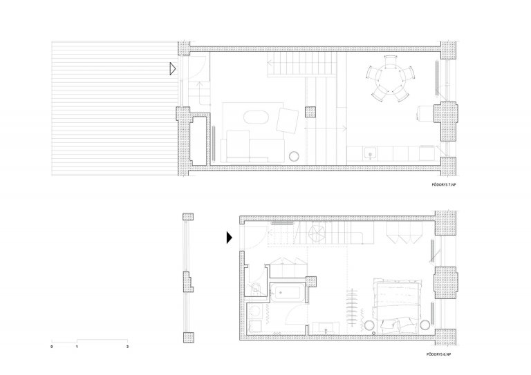
Do loftových bytů situovaných na nejvyšších podlažích v obnovené Mlynici se vstupuje ze společné chodby na pátém patře. Nosné, mezibytové stěny byly budovány mimo modulový systém sloupů. Ten se tak stal svým rytmem součástí prostorových řešení jednotlivých bytových jednotek. Ústředním prvkem prostorového řešení je schodiště, které zpřístupňuje vložené obytné podlaží. Každý byt má vlastní terasu.

Loft v obnovené Mlynici
Foto: Lousy Auber

Projekt loftu zasazeného v složitém kontextu

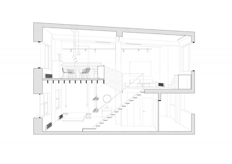
Třípodlažní loft v industriálním objektu Mlynica je neobvyklý prostor k bydlení a trávení společenského života. Samotný objekt mlýnice, nacházející se v odlehlejším bratislavském Brownfieldu, nedávno prošel rozsáhlou konverzí a v současnosti poskytuje multifunkční prostory s minoritní obytnou náplní. Dispozice loftu je řazena vertikálně. Vstupuje se do spodní úrovně loftu, kde se nachází šatna, koupelna, WC a ložnice. Schodištěm je dostupná horní úroveň loftu s obývákem propojená výjezdních schody s jídelnou a kuchyní. Z obývacího pokoje je také dostupná terasa s výhledem na Karpaty. Autory díla jsou architekti Juraj Hubinský, Peter Kuklica a Martin Smerek

Přečtěte si také

Minimalistický dům z betonu

V portugalském městě Porto vyrostl dům, jehož základem je prostorový kontrast uzavřenosti a otevřenosti. Stojí za ním architekt João Vieira de Campos, který při návrhu tohoto moderního bydlení dbal…

Interiér loftu

Stavební surové materiály použité v loftu kontrastují s vloženými stolařskými a zámečnickými prvky a přiznanými rozvody na povrchu stěn. Obálku loftu tak tvoří neomítnutý litý beton, železobetonový strop a betonová podlaha s epoxidovým lakem. Na spodní úrovni loftu se nachází zabudovaný šatník, který v sobě integruje i dveře do hygienických buněk, které jsou spolu s dveřmi šatníku sjednoceny do celistvé celozrcadlové plochy, která opticky zvětšuje prostor. Umyvadlo na ocelových nožkách je umístěno mimo zrcadlový box a od postele ho odděluje ze stropu svěšení černá ocelová věšáková tyč a také textilní závěs na celou výšku místnosti, kterým je možné zcela oddělit ložnici od zbytku loftu.

Loft v obnovené Mlynici
Foto: Lousy Auber

Vložené černé schodiště je svařeno z ocelových plechů. Schodiště vedoucí ze spodního podlaží od vstupu a ložnicové části do obývací místnosti, spolu s tenkým zábradlím působí subtilním dojmem. Odlehčený výraz mu dodávají i vynecháné podstupnice. Výškově zalomené horní podlaží je propojeno pobytovými schody z bělené březové překližky. Ty kontrastují s tmavým kuchyňským boxem z černé mořené překližky a tmavým jídelním stolem a židlemi. Celočalouněná sedací souprava v obývací části na horním podlaží je potažena šedou látkou.

Osvětlení loftu zajišťují výrazné svěšené lustry nad postelí a jídelním stolem, v kombinaci s přisazeným technickým liniovým a reflektorové osvětlením. Interiér loftu byl osvěžujícím solitérním zadáním s důrazem na syrovou estetiku zrcadlící charakter industriální lokality, objektu a osobnosti klientky.

Foto: Lousy Auber
Zdroj: Kuklica x Smerek, Juraj Hubinský

Další články

Postavili jste dům, rekonstruovali byt nebo máte hezkou zahrádku a rádi byste se pochlubili?

Nejnovější realizace

Byt 2+1 v centru Prahy

Bydlení Teplice

Útulná garsonka v novostavbě

Byt 4+kk Berlín

Mezonet na Vinohradech

Zelené kaskády: Moderní rodinné bydlení na celý život

Sledujte nás

Nejčtenější články

Neuvěřitelně rychle rostoucí živý plot

Mikrobyty – novinka, která láká české investory

Jak odstranit vosk z ubrusu i ze stolu

Mini koblihy

Aranka – romantický minidomek šetrný k přírodě

Tepelné čerpadlo je nejlepší kombinovat s fotovoltaikou

Všimli jsme si, že blokujete reklamy

Příprava kvalitního obsahu je časově i finančně náročná. Abychom pro vás mohli i nadále připravovat zajímavé články, potřebujeme vám zobrazovat reklamy, díky kterým můžete stránky prohlížet zdarma. Prosíme o vypnutí blokování reklam, aby i do budoucna mohl být obsah našeho webu zdarma pro všechny.

adblock