Ukládání projektu

Tato stránka používá cookies, pro správnou funkci stránky prosím sdělte svůj souhlas.

Není chata jako chata

Není chata jako chata

V České republice si pod pojmem chata většinou představíme malý útulný domeček obložený dřevem, s parožím na zdi uprostřed lesa nebo zahrádkářské kolonie. Dnes se již tyto představy pomalu smazávají a často od chaty neočekáváme jen místo kde se spí v malé komůrce. Chata se může stát naším plnohodnotným druhým domovem, bez zbytečných kompromisů.

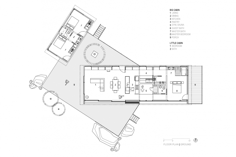
Pro každého z nás může ideální chata vypadat jinak. Svou vysněnou chatu, respektive chaty dvě, si nechala jedna rodina, v Coloradu v USA, postavit přímo na skále. Projekt s názvem ,,Velká  a malá chata" má být ztělesněním charakteru a představivosti tradiční chaty, ale v novém pojetí. Pomáhá vytvářet příběh rodiny, která je moderní a má ráda volnost.  

Společnost Renee Del Gaudio Architecture pro rodinu navrhla dvě chaty, které jsou spolu úzce spjaty a vytváří jednotný celek. Z obou budov je ohromující výhled na pohoří de Cristo Sangre a tamní řeku v americkém Coloradu. Na severu je nemovitost obklopena hustým lesem plným jedlí a borovic, což vytváří pocit soukromí a bezpečnosti.

Není chata jako chata

S ohledem na okolí

Obě chaty mají jednoduchou sedlovou střechu, které se běžně podle jejího vzhledu říká ,,áčková". Domy jsou zvenčí šedivé, jako skála na které samy stojí. Architektonicky zapadají do místního prostředí a nejsou svým vzezřením nijak kýčovité. Ba naopak, navazují na tamní historii a vrací se ke kořenům regionální architektury. Cedrová fasáda je ztmavena, aby odpovídala nejen skaliskům okolo, ale také kůře stromů v okolí. Obě stavby jsou z velké části prosklené a otevírají tak interiér úchvatným výhledům. Stropy jsou z vnitřní strany obloženy překližkou a podlahy jsou vyrobeny z masivního dřeva. Hnědé tóny navozují domácí atmosféru a hřejivý pocit pohody. Celou stavbu provází dřevěné trámy po obvodu uvnitř i pod střechou. Přiznáním těchto prvků byl vytvořen jedinečný ráz celé stavby.

Není chata jako chata

Energetická úspora

Jednoduchá, otevřená organizace interiéru umožňuje, aby zde proudilo světlo i vzduch celým domem. Energeticky úsporné spotřebiče a LED osvětlení snižují spotřebu energie na minimum. Vhodná izolace, dvojitá i trojitá speciální okna s okenicemi, umožňují v létě zchladit interiér a v zimě jej udržet v teple. Domy jsou také vybaveny podlahovým vytápěním a kamny na dřevo. Není nad představu uvařit si kávu a užívat si nádherný výhled do dálky v teple kamen. Chata je plně samostatná i díky dostatečnému množství fotovoltaických panelů, které poskytují obyvatelům elektřinu.

Interiér je zařízen jednoduše a vzdušně. Od kousků vyrobených na míru, až po moderní klasiku jako jsou ikonické designové židle od Vitry ,,Eames Chair". Jednoduchost tvarů a otevřenost prostoru i nábytku je prvkem, který propojuje vzhled celého domu.

Zajímavostí je patro pod střechou, tvořící jakýsi balkón, s přístupem pomocí žebříku. Výjimečný je také fakt, že člověk zde má možnost sledovat panoramatické výhledy opravdu z každého pokoje a místa. Z postele v ložnici, ležící ve vaně, nebo sedící u jídelního stolu, ale neustále v objetí přírody. 

Zdroj: rdg-architecture.com

Další články

Postavili jste dům, rekonstruovali byt nebo máte hezkou zahrádku a rádi byste se pochlubili?

Nejnovější realizace

Garsonka v Brně

Koupelna EPOXY

KUCHYNĚ S MAXIMÁLNÍM VYUŽITÍ PROSTORU

Dětský pokoj pro milovnici filmu a Harryho Pottera

Jak dosáhnout elegance a harmonie v interiéru s omítkou Claywall?

Interiér Křižíkova

Sledujte nás

Nejčtenější články

Podzimní dekorace

Neuvěřitelně rychle rostoucí živý plot

Vyrobte si adventní věnec

Luxusní maringotka

Aranka – romantický minidomek šetrný k přírodě

Renovace komínů pomocí unikátní omítky Izonil

Všimli jsme si, že blokujete reklamy

Příprava kvalitního obsahu je časově i finančně náročná. Abychom pro vás mohli i nadále připravovat zajímavé články, potřebujeme vám zobrazovat reklamy, díky kterým můžete stránky prohlížet zdarma. Prosíme o vypnutí blokování reklam, aby i do budoucna mohl být obsah našeho webu zdarma pro všechny.

adblock