Ukládání projektu

Tato stránka používá cookies, pro správnou funkci stránky prosím sdělte svůj souhlas.

Velkoryse prosklený dům u Tiché Orlice

Velkoryse prosklený dům u Tiché Orlice

S lesy v zádech a s úchvatným výhledem do zahrady a Tichou Orlici před sebou vyrostl na pěkném pozemku dům přirozeně splývající s krajinou. Zaujme interiérem plným dřeva a slunečních paprsků, které si pohrávají uvnitř domu i v zahradě.

Moderní dům vděčí za svůj vzhled architektům ze studia Molo Architekti, konkrétně Maje Horecké Nalevankové a Patriku Zamazalovi. Podle jejich návrhu vzniklo na zastavěné ploše o velikosti 165 m2 bydlení s užitnou plochou poskytující 134 m2. Dům se velkými okny dívá do přírody a vedle krásných výhledů poskytuje majitelům i příjemně světlé útočiště.

Konstrukce domu

Konstrukce domu je hybridní, stavba je založena na patkách. Střechu tvoří dřevěný nosný rošt uložený na ocelových sloupech a průvlacích a zateplená nadkrokevní izolace. K zateplení obvodového pláště posloužilo souvrství reflexních fólií v tloušťce cca 30 mm, doplněné akustickou izolací. Konstrukci podlahy tvoří betonová mazanina, protiradonová izolace, tepelná izolace a také roznášecí a nášlapná vrstva.

Velkoryse prosklený dům u Tiché Orlice
Foto: Lukáš Žentel

Kontrastní černobílé bydlení

Dům se vyznačuje výrazným horizontálním charakterem podpořeným linií ploché střechy. Díky ní dochází k praktickému propojení objektů domu a garáže. Přesah střechy rovněž zakrývá dřevěnou terasu a také vstup do zádveří. Vzhled domu si vystačil s černobílou paletou barev, která umocňuje sílu kontrastu s neustále se měnící barevností zahrady. Dům je na severní straně mírně zapuštěn do terénu, a to kvůli pohodlnějšímu napojení jižní terasy na přilehlý terén.

Přečtěte si také

Prosvětlený bungalov s hravým interiérem

Bydlení plné světla a čerstvého vzduchu. Otevřená dispozice, ale i blízkost k přírodě. Přesně toto jsou trendy současného bydlení. Jeden takový dům se nachází i v jedné vesničce nedaleko Košic. Jistě…

Bydlení ve velkoryse proskleném domě

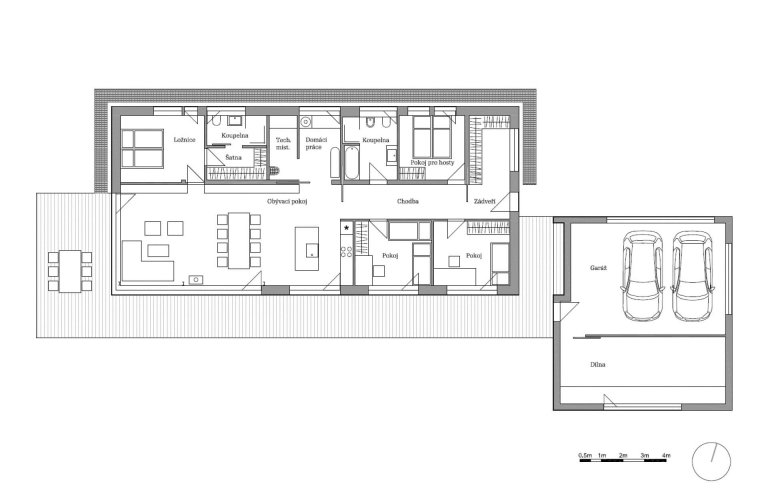
Dům je otočen na jih, a tak nabízí působivý výhled do zahrady i na vzdálenější Tichou Orlici. Severním směrem jsou orientovány místnosti zázemí spolu s ložnicí rodičů a pokojem pro hosty. Obývací zóna se otevírá přes velkorysé prosklení na západní a jižní stranu. Severním směrem je fasáda uzavřenější, do domu se vchází z východní strany. Kolem celé jižní a západní strany se táhne dřevěná terasa chráněná před sluncem a deštěm pomocí střešního přesahu.

Velkoryse prosklený dům u Tiché Orlice
Foto: Lukáš Žentel

Interiér domu

Uvnitř domu je velice příjemná atmosféra. Umocňují ji velká okna, kterými se do interiéru dostává velké množství přirozeného světla. Bydlení působí svěžím dojmem také kvůli hojně použité bílé barvě a světlému odstínu dřeva. Do této barevné kompozice sem tam vnikne pár černých akcentů. Díky minimalistickému stylu je interiér velice prostorný a vzdušný. Velká okna stíní v případě potřeby elegantní závěsy spadající až na zem, není tu tedy nouze ani o tolik důležité soukromí.

U Tiché Orlice tak vyrostl velkoryse řešený dům, který vychází vstříc všeobjímající přírodě. Působí pokorně a vzdušně. A je dokonalým domovem pro ty, kteří si chtějí každým dnem vychutnávat výhledy na neustále se měnící přírodu.

Foto: Lukáš Žentel
Zdroj: www.moloarchitekti.cz

Další články

Postavili jste dům, rekonstruovali byt nebo máte hezkou zahrádku a rádi byste se pochlubili?

Nejnovější realizace

Byt 2+1 v centru Prahy

Bydlení Teplice

Útulná garsonka v novostavbě

Byt 4+kk Berlín

Mezonet na Vinohradech

Zelené kaskády: Moderní rodinné bydlení na celý život

Sledujte nás

Nejčtenější články

Neuvěřitelně rychle rostoucí živý plot

Mikrobyty – novinka, která láká české investory

Jak odstranit vosk z ubrusu i ze stolu

Mini koblihy

Tepelné čerpadlo je nejlepší kombinovat s fotovoltaikou

Aranka – romantický minidomek šetrný k přírodě

Všimli jsme si, že blokujete reklamy

Příprava kvalitního obsahu je časově i finančně náročná. Abychom pro vás mohli i nadále připravovat zajímavé články, potřebujeme vám zobrazovat reklamy, díky kterým můžete stránky prohlížet zdarma. Prosíme o vypnutí blokování reklam, aby i do budoucna mohl být obsah našeho webu zdarma pro všechny.

adblock