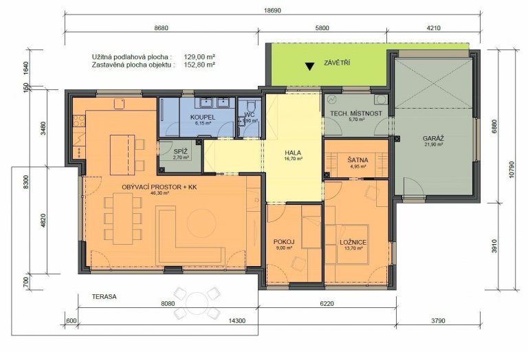
Typová dřevostavba o rozloze 150 m2. U většiny našich staveb doporučujeme založení stavby na základových patkách (samozřejmě z ekonomických důvodů), ovšem u…

O realizaci

Typová dřevostavba o rozloze 150 m2. U většiny našich staveb doporučujeme založení stavby na základových patkách (samozřejmě z ekonomických důvodů), ovšem u rodinného domu takového rozměru jsme museli stavět již na klasické základové desce.

Dispozičně můžete na fotografiích vidět 3+KK+garáž, ale lze stavbu navrhnout jako 4+KK, kdy lze místo garáže počítat s další obyvatelnou místností. Střecha je složena z PVC a kačírku.

Stavba se vyznačuje třemi výškově oddělenými moduly, kdy každý modul má jiný fasádní povrch – fasádní omítku, palubky Rhombus ze sibiřského modřínu 21x58mm a fasádních desky Cembrit cembonit ve dvou barvách.

Tato dřevostavba obsahuje velké množství nadstandardních příplatků (fasáda, kuchyně, podlahy, trojskla, posuvný HS portál, terasa, předokenní žaluzie, komín a krbová kamna, el. podlahové vytápění a posuvné interiérové dveře).

Zařizovali jsme také komplet povolení a výstavbu studny, ČOV a akumulační nádrže + vsakovacího objektu + připojení na dům.

Obrázky

Fotograf: Ivan Mladenov

Komentáře


L P
 | 22. 5. 2018

Vizualne pekne, skoda hloupe reseneho vnitrniho usporadani a prostoru. Proc ma pruchozi hala skoro dvakrat vice metru nez pokoj? Navic, 9m neni pokoj ale kumbal. V rodinnem dome mit takhle maly prostor je ostuda. I loznice s ani ne 14m bude klaustrofobicka.

Další realizace