Další z dokončených dřevostaveb v roce 2018 byla typová EASY 48 prodloužená na 13m s doplňkovou EASY 24 ve středních Čechách. Na oba domečky…

O realizaci

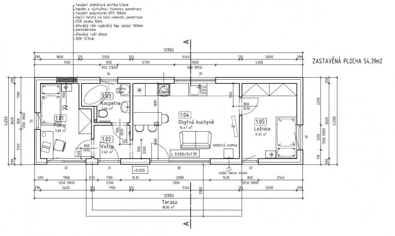
Další z dokončených dřevostaveb v roce 2018 byla typová EASY 48 prodloužená na 13m s doplňkovou EASY 24 ve středních Čechách. Na oba domečky jsme zhotovili fasádu na přání majitelů ve výrazné pistáciové barvě. Cena u většího modulu 1.115.000Kč a menšího 575.000Kč s DPH včetně základových patek. Z příplatkové výbavy bylo u EASY 48 instalováno el. podlahové topení a nerezový komínový systém. Krbová kamna a kuchyňskou linku si majitelé zařizovali sami.

Obrázky

Komentáře

Další realizace