V menší obci Myslinka v okrese Plzeň – sever jsme zhotovili dřevostavbu o rozměrech 14,3x4,7m, která vznikla prodloužením a rozšířením naší typové Easy…

O realizaci

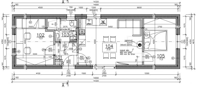
V menší obci Myslinka v okrese Plzeň – sever jsme zhotovili dřevostavbu o rozměrech 14,3x4,7m, která vznikla prodloužením a rozšířením naší typové Easy 48 a zastavěná plocha se tedy zvětšila na 67m2. Začátek stavby se odkládal vzhledem k požadavkům stavebního úřadu na úpravu vjezdu, povolení cesty a ČOV, ale po vyřízení povolení stavět už realizace probíhala hladce a to i díky tomu, že majitelé měli technický dozor investora, odborníka, který se stavbě rychle a pečlivě věnoval a tak byla komunikace i celá výstavba bezproblémová. Odstíny v interiéru i exteriéru jsou voleny do přírodních barev a tak dřevostavba pěkně zapadne do prostředí pozemku sousedícího s lesy a polem. Při předání byl s průběhem výstavby spokojen dozor, majitelé i my a tak je to správně :-).

Obrázky

Komentáře

Další realizace