Rekonstrukce bytu v secesním domě

Design: OOOOX| Ing. Arch. Radka Valová, Ing. Arch. Magda Palečková


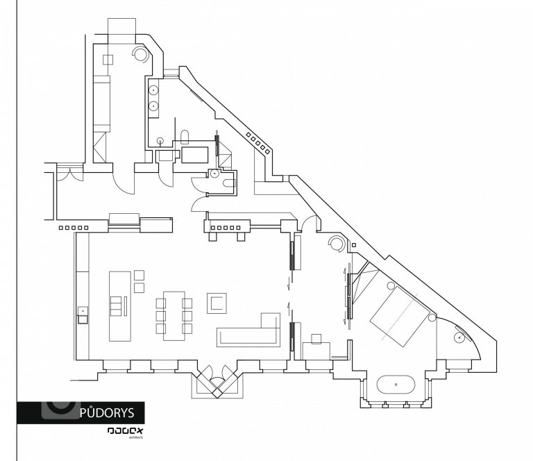
Dispozice – původní velkorysý byt za dob…

O realizaci

Rekonstrukce bytu v secesním domě

Design: OOOOX| Ing. Arch. Radka Valová, Ing. Arch. Magda Palečková


Dispozice – původní velkorysý byt za dob normalizace necitlivě rozdělen na dvě bytové jednotky, které byly ve velmi špatném stavu. Rekonstrukcí došlo ke spojení obou bytů. Směrem do ulice vznikl velký obytný pokoj s kuchyní a jídelnou, navazující na pracovnu. V cípu bytu je situovaná ložnice s příruční koupelnou a vanou, do dvora je pak orientován dětský/hostinský pokoj a koupelna.


Koncept /barevnost /materiály - Hlavní linkou celého konceptu je kombinace původních prvků a současného designu. I přesto, že se v bytě původních prvků moc nedochovalo, rozhodli jsme se většinu stavebních prvků obnovit a doplnit. Celý interiér je laděn do bílé včetně masivní prkenné podlahy. Kontrastní plochou je výrazná malba stěny v obývacím pokoji a vstupní hale. Původním záměrem byla oškrábaná omítka, které nebylo možné kvůli novým rozvodů elektro dosáhnout. Nicméně myšlenku „plesnivé zdi“ jsme se rozhodli neopustit a po několika desítkách vzorků padla volba na malbu kulis. Materiály jednotlivých solitérů jsou voleny opět do kontrastu s bílým základem. Stěny jsou doplněny kazetovým obložením, které pod okny kryje radiátory. Stropy jsou doplněny profilovanými rohovými lištami.


Kuchyně – je tvořena třemi hmotami. Nejvýraznější z nich je středový betonový ostrůvek, kde se beton objevuje i na čelech nábytku. Do ostrůvku je osazena sestava varných modulů a výsuvná cirkulační digestoř. Před ostrůvkem je vybudován květináč pro bylinky.
Další hmotou je nízká část u stěny, kde je situován vestavný dřez, který je provedený ve stejném materiálu jako pracovní deska. Atypicky na touto nízkou částí nejsou umístěny horní skříňky, ale zrcadlo, které prostor opticky ještě prodlužuje.
Třetí hmotou je skříň s vestavnými spotřebiči, která výrazově navozuje dojem almary. Povrch je proveden z mořené biodesky, orientace dvířek se střídá tak, aby povrch nepůsobil příliš robustně. Úchytky na této části kuchyně jsou mosazné, speciálně dovezené ze Švédska.


Jídelna – jídelní stůl, úctyhodných rozměrů 3,1 x 1,1 m, je dominantou celého obytného pokoje. Jídelní stůl je vyroben ze 3 kusů masivního amerického ořechu s ponecháním krajiny. Spoje jsou tvořeny ocelovými spojkami. Materiál byl vybrán s ohledem na co nejvýraznější kresbu i praskliny, povrch byl domořen do tmavého odstínu. Rozměry stolu do budoucna umožňují osazení až 10 židlí. Nad jídelním stolem je zavěšeno rozměrné svítidlo tvořené pěti zdroji a soustavou kabelů evokující liány. Svítidlo umožňuje vysokou variabilitu ve směrování jednotlivých zdrojů.


Obývací pokoj – obývacímu pokoji je v celém prostoru ponechán útulný kout s čtecí lampu a ušákem. Protější stěna je určena pro televizi a audio. Celý prostor je ozvučen vestavnými skrytými reproduktory. Skříňka na přístroje audio/video pod televizí je zakomponována do designu kazetového obložení. Obytnému pokoji vévodí černý viktoriánský litinový krb s bio vložkou.


Pracovna – pracovna navazuje na obytný pokoj širokými skleněnými posuvnými dveřmi do pouzdra, které byly nově zabudovány do stěny. Celá stěna s dveřmi je osazena velkou knihovnou. Rozdílné hloubky polic reagují na různé formáty knih – ať jsou to encyklopedie či beletrie. Pod oknem je umístěn malý sklápěcí konzolový pracovní stolek. Z pracovny je přístupná šatna a zázemí bytu, stejně tak i hlavní ložnice.


Ložnice / koupelna – ložnice je umístěna do trojúhelníkového cípu bytu. Oblá nika v cípu je určena pro kout s umyvadlem, do arkýře je umístěna volně stojící vana, která poskytuje výhled z oken. Nad vanou jsou umístěné směrovací čtecí lampy v retro designu. Postel vznikla úpravou starého modelu klientů přečalouněním a výraznější úpravou čela, kde došlo k doplnění „křidýlek“ po stranách. Druhý kout ložnice vyplňuje vestavná šatní skříň ve stejném designu jako almara v kuchyni. Stěna za postelí je opět opatřena výraznou malbou. Nad postelí je osazeno stropní svítidlo tvořené holou žárovkou ovšem se stínem křišťálového lustru.


Koupelna / toaleta – koupelna je v bytě situována tak, aby měla přístup denního světla. V koupelně vznikla velká walk-in sprcha s kouřovým prosklením. Na ni navazuje pult s umyvadly. Celá jedna stěna je opatřena velkou kazetou se zrcadlem. Doplňky v koupelně byly vyrobené na zakázku. Držák ručníků je svěšen ze stropu přímo ve sprše.


Vstupní hala – široká chodba je prosvětlena denním světlem přes skleněné dveře dětského pokoje. Podlaha v hale je tvořena mramorovou mozaikou, která svým designem evokuje původní podlahy. Čelní stěna je tvořena velkým zrcadlem a solitérem židle s věšákem. Ze stropu jsou svěšena sklolaminátová svítidla s roztřepenými kraji.


Šatna – přímo navazuje na vstupní halu a koupelnu. Její nelehký trojúhelníkový tvar byl maximálně vyplněn vestavnými skříněmi. Aby prostor nepůsobil monotónně, zůstaly některé části nábytku otevřené a nasvětlené. Tyto jsou provedené v materiálu evokující tkaninu. Kožené úchytky jsou opět švédské provenience, zde v kombinaci přírodní kůže a mosazi


Dětský/hostinský pokoj – je orientován do dvora s přístupem na balkón. Roh místnosti je vyplněn vestavnou skříní s knihovnou a krytem na radiátor.


Doplňky - Sladění interiéru bylo možné jen díky velmi vstřícnému přístupu klientů, kteří jsou milovníci designu. Jejich volba obrazů se stylizací fauny alá lovecké portréty dotváří dojem salónu. Drobné doplňky jako jsou polštáře, přehozy a vázy jsou ze sortimentu LOOOOX.
 

Obrázky

Fotograf: Martin Zeman

Komentáře


Irena Lenger
 | 11. 11. 2019

Velkou poklonu paní architektce, blahopřání majitelům

Další realizace