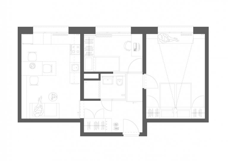
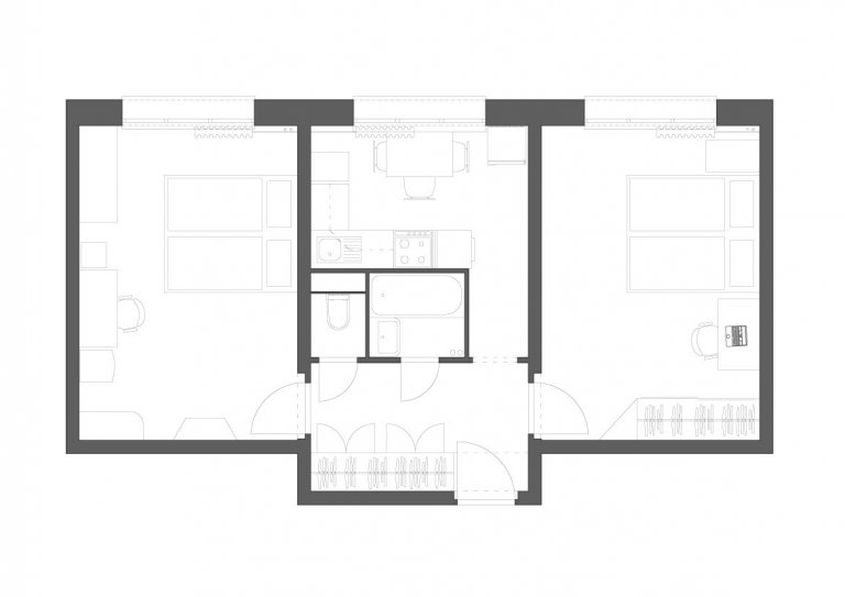
Změna dispozice bytu z 2+1 na 3KK

Koncepce:
- zvětšení prostoru předsíně a jeho prosvětlení přes koupelnu
- zvětšení koupelny
- pracovna/pokoj pro hosty
…

O realizaci

Změna dispozice bytu z 2+1 na 3KK

Koncepce:
- zvětšení prostoru předsíně a jeho prosvětlení přes koupelnu
- zvětšení koupelny
- pracovna/pokoj pro hosty
- zvětšení kuchyně a propojení s obývacím prostorem
- v ložnici sklopná postel umožňuje každodenní tancování
- okno v knihovně s posezením na rozšířeném parapetu s výhledem ven

Obrázky

Komentáře

Další realizace