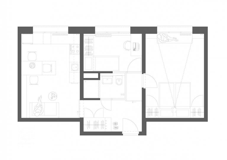
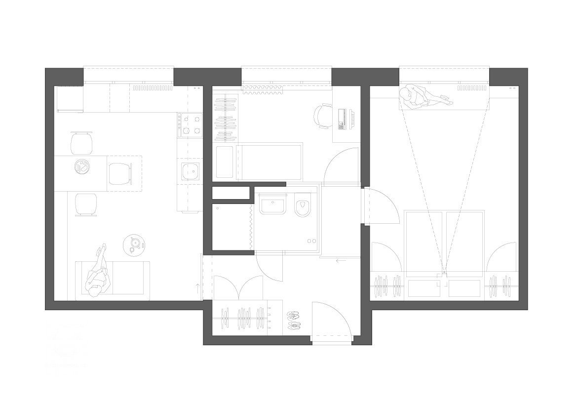
Změna dispozice bytu z 2+1 na 3KK Koncepce: - zvětšení prostoru předsíně a jeho prosvětlení přes koupelnu - zvětšení koupelny - pracovna/pokoj pro hosty - zvětšení kuchyně a propojení s obývacím prostorem - v ložnici sklopná postel umožňuje každodenní tancování - okno v knihovně s…