ARCHAMI - NIKOLA PÁSTOROVÁ
Architekt
|
Jihomoravský kraj
RD Dolní Jirčany
Vizualizace
https://www.bydlo.cz/files/image/projects/2455/archami_nikola-koprivova_2455_20462_big.jpg
Bydlo.cz
213
41
https://www.bydlo.cz/www/images/header-logo-02.png
Základní informace o realizaci
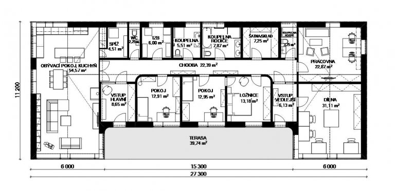
Studie rodinného domu pro mladou rodinu, která miluje řemeslnou činnost a proto je součástí domu velká tvůrčí dílna. Dům bude v pasivním standardu. Fasáda bude provedena v černém opalovaném…
Číst více
Kategorie působnosti
Architekt
Regiony působnosti
Jihomoravský kraj
Celá ČR