Ukládání projektu

Tato stránka používá cookies, pro správnou funkci stránky prosím sdělte svůj souhlas.

Bydlo
Přihlásit se Registrovat se
  • Realizace
    • Kuchyně
    • Obývací pokoj
    • Jídelna
    • Ložnice
    • Dětský pokoj
    • Šatna
    • Koupelna
    • Záchod
    • Pracovna
    • Předsíň / chodba
    • Schodiště
    • Sauna
    • Bazén
    • Zahrada
    • Zimní zahrada
    • Terasa / balkón
    • Altán / pergola
    • Dům / architektura
    • Dřevostavba
    • Srub / roubenka
    • Sklep / vinotéka
    • Plot
    • Zahradní kuchyně
  • Katalog firem
    • Architekt
    • Projektant
    • Interiérový designer
    • Kuchyňské studio
    • Koupelnové studio
    • Zahradní architekt
    • Zahradní jezírka
    • Venkovní kuchyně
    • Výrobce nábytku
    • Stolař / truhlář
    • Ploty a brány
    • Dřevostavby
    • Kamnář
    • Stavební firma
    • Bazénový specialista
    • Vizualizace
    • Zahradník
    • Fotograf
    • Kameník
    • Malíř
    • Ostatní
  • Magazín
    • Bydlení
    • Zahrada
    • Inspirace
    • Vaříme
  • search
D+Architekti
Architekt | Kraj vysočina
E: drbalek@gmail.com
Poslat zprávu Sledovat
Zobrazení realizace 10888
Líbí se 0
Sdílení celkem
Facebook
Twitter

Řadové domy Hořice

Vizualizace
https://www.bydlo.cz/files/image/projects/486/d-architekti_486_3500_big.jpg
Bydlo.cz
213 41
https://www.bydlo.cz/www/images/header-logo-02.png

D+Architekti

Architekt | Kraj vysočina
E: drbalek@gmail.com
Poslat zprávu Sledovat

Sdílení celkem
Facebook
Twitter

Zobrazení realizace 10888
Líbí se 0

Základní informace o realizaci
Studie řadových domů do Podkrkonoší. I na úzkých parcelách jsme našli pohodlné bydlení se soukromím v zahradách.  
Číst více

Kategorie působnosti

Architekt

Interiérový design


Regiony působnosti Kraj vysočina Celá ČR

Štítky

Dům / architektura

Pohled z ulice

O realizaci

Studie řadových domů do Podkrkonoší. I na úzkých parcelách jsme našli pohodlné bydlení se soukromím v zahradách.  

Obrázky

Pohled z ulice
Přidat do alba
Pohled z ulice
Přidat do alba
Pohled ze zahrady
Přidat do alba
Pohled ze zahrady
Přidat do alba
Zastavovací plán
Přidat do alba
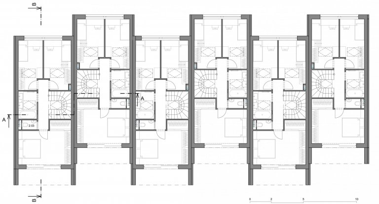
Půdorys 1.NP
Přidat do alba
Půdorys 2.NP
Přidat do alba
Pohled z ulice
Přidat do alba
Pohled z ulice
Přidat do alba
Pohled ze zahrady
Přidat do alba
Pohled ze zahrady
Přidat do alba
Zastavovací plán
Přidat do alba
Půdorys 1.NP
Přidat do alba
Půdorys 2.NP
Přidat do alba
Sdílení celkem
Facebook
Twitter

Komentáře

Líbí se mi

Další realizace

Dětský pokoj pro ONA a ON

Dětský pokoj pro ONA a ON

0
12135
Sdílet
Čistě bíle s  grafikou na stropě

Čistě bíle s grafikou na stropě

0
9128
Sdílet
Obývací pokoj pro mladý pár

Obývací pokoj pro mladý pár

0
8772
Sdílet
Dětský pokoj pro dva malé na Letné

Dětský pokoj pro dva malé na Letné

0
11619
Sdílet
Přidat do alba
picture preview
Přidat do alba

Pro přidání do alba musíte přihlášený.
Přihlásit se  |  Vytvořit účet

Všimli jsme si, že blokujete reklamy

Příprava kvalitního obsahu je časově i finančně náročná. Abychom pro vás mohli i nadále připravovat zajímavé články, potřebujeme vám zobrazovat reklamy, díky kterým můžete stránky prohlížet zdarma. Prosíme o vypnutí blokování reklam, aby i do budoucna mohl být obsah našeho webu zdarma pro všechny.

adblock
O bydlení
  • Kuchyně
  • Obývací pokoj
  • Ložnice
  • Koupelna
  • Dům / architektura
  • Dřevostavba
Odběr novinek
Sledujte nás
Další informace
  • O nás
  • Bydlo programy
  • Jak se zapojit?
  • Uživatelské podmínky
  • Ochrana osobních údajú
  • Cookies
  • Redakce

Copyright © 2013 - 2026, Bydlo.cz

Registrace nového uživatele
info
info
Podařilo se načíst základní údaje. Vyplňte zbývající informace a dokončete registraci.
Po dokončení bude váš účet propojen se zvolenou sociální sítí.
*
*
*
info
*
*

Vložte obrázek ve formátu JPEG, PNG nebo GIF s rozměry alespoň 200x200px.

TIP: Obrázek můžete upravit – posuvníkem zvětšíte či zmenšíte, kliknutím myši a posunem upravíte pozici.

Profilové údaje

* info
info
* info
info

Doplňující údaje

*
*

Kontaktní údaje

*
*
*
*

Fakturační údaje

*
*
*
*

* Tyto položky jsou povinné

Přihlášení

Zapoměli jste heslo?

Nemáte účet? Zaregistrujte se.

Odeslat zprávu
Ahoj, posílám ti odkaz na inspiraci, která by tě mohla zajímat.
foto inspirace