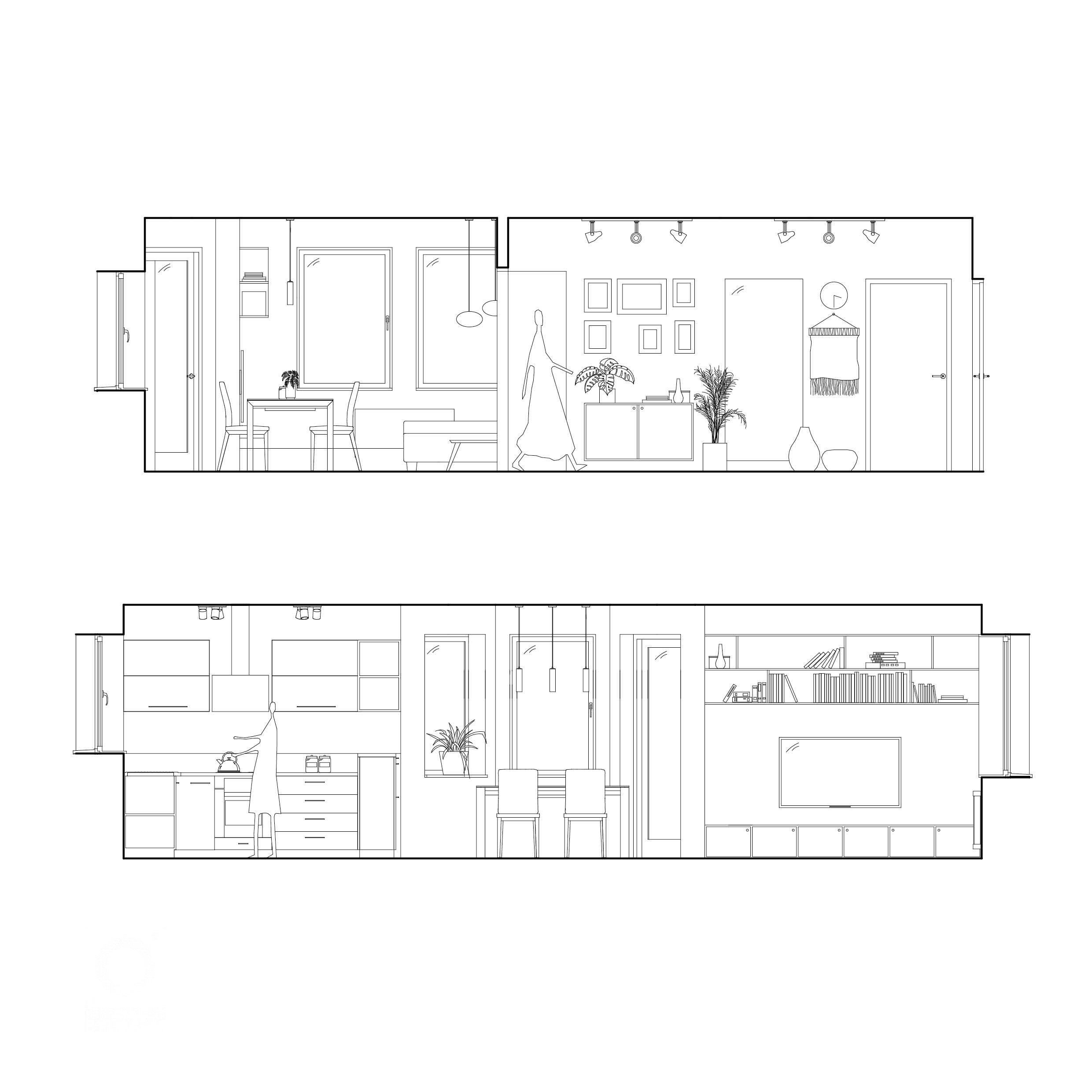
Dvoupodlažní rodinný dům si po delším čase vyžaduje interiérovou obnovu kvůli novým požadavkům rostoucích dětí a práce rodičů z domova. Přáním klientů bylo přizpůsobit nábytek přímo dle jejich potřeb. V obývacím pokoji, který je nadstandartně velký svou rozlohou, je umístěn za pohovkou pro celou…