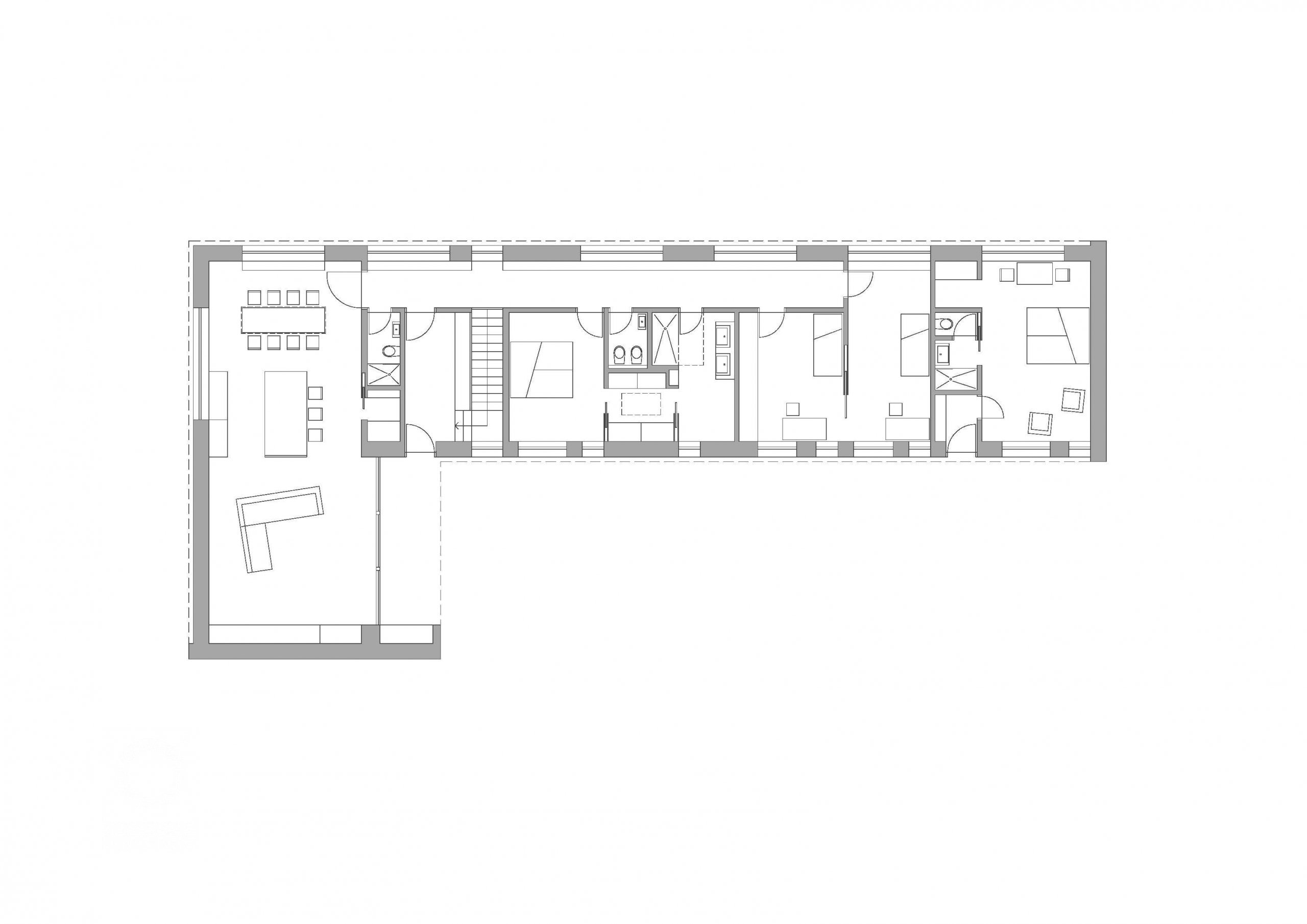
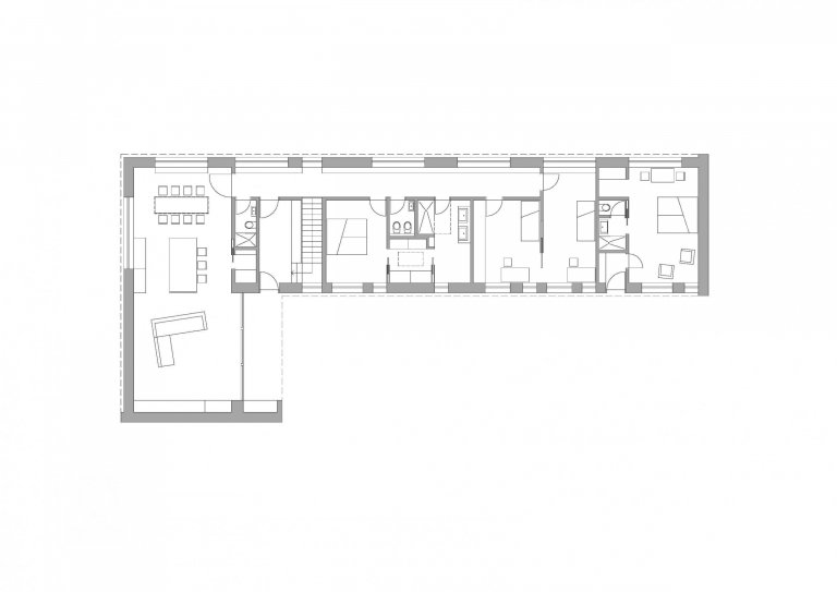
Navrhovaný objekt je citlivě zasazen do území, dbá na pozitivní využití výrazné morfologie pozemku a snaží se být pokorný k místu i okolí. Výrazně svažitý terén a snaha o zachování jeho původní modelace umožnily zapustit část nadzemního obytného podlaží pod okolní úroveň. Dům tak splývá s pozemkem,…