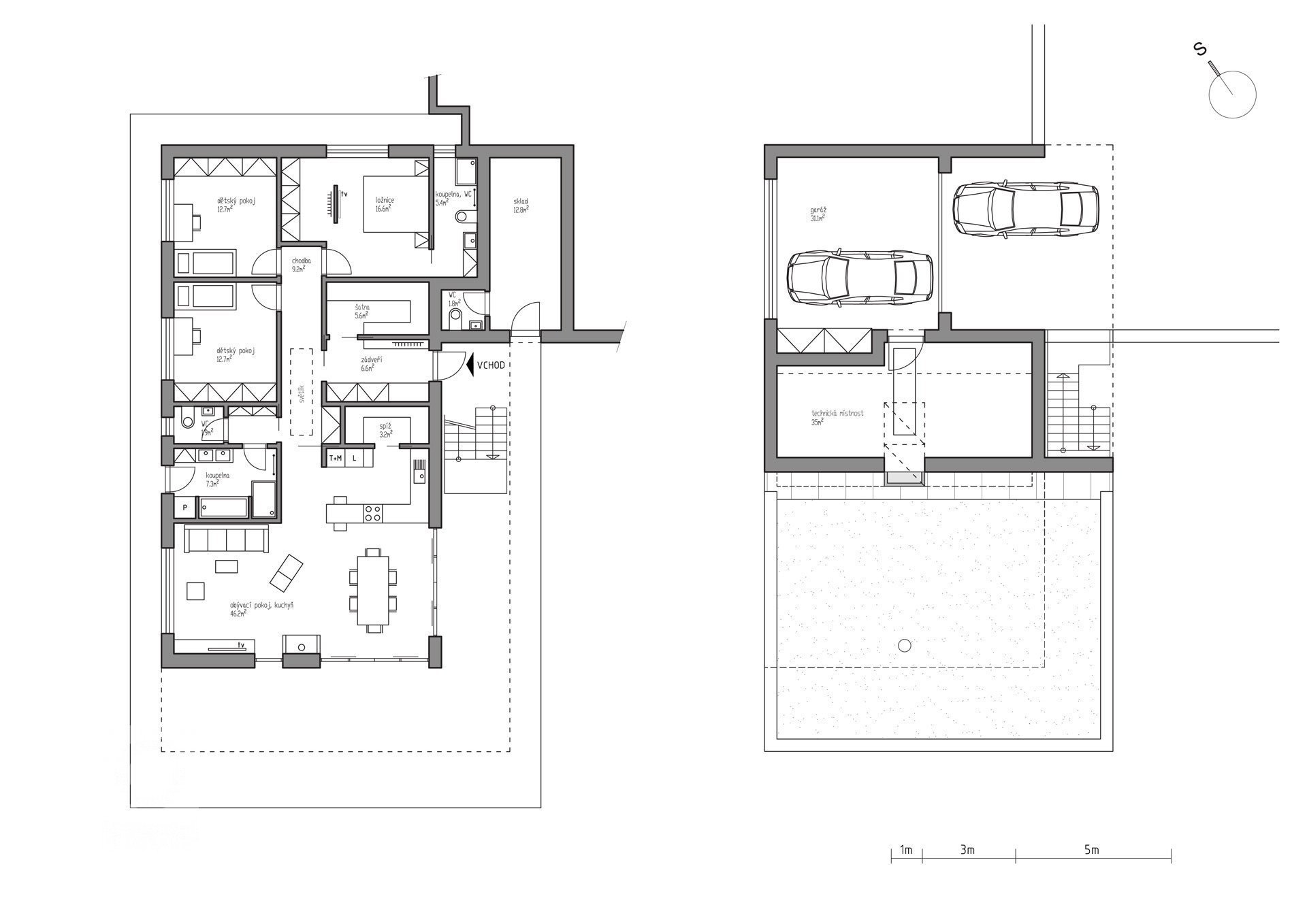
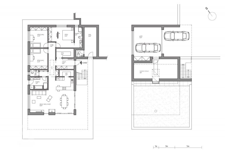
Rodinný dům Horská - půdorysy
Profilový obrázek/logo
Vložte obrázek ve formátu JPEG, PNG nebo GIF s rozměry alespoň 200x200px.
TIP: Obrázek můžete upravit – posuvníkem zvětšíte či zmenšíte, kliknutím myši a posunem upravíte pozici.
Profilové údaje
Doplňující údaje
Kontaktní údaje
Fakturační údaje